このページを印刷する
- 価格
-
1億4,500万円
- 間取
-
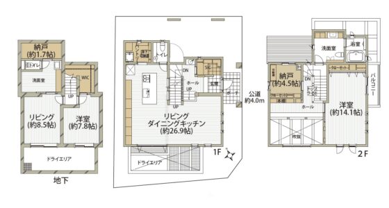
4LDK
| 所在地 | 東京都世田谷区八幡山2丁目 |
|---|---|
| 建物名 | 世田谷区八幡山2丁目 戸建 |
| 交通 |
|
| 築年月 | 2011年8月(築14年6ヶ月) | 新築/中古 | 中古 |
|---|---|---|---|
| 面積 | 計測方式 | ||
| バルコニー | 向き | ||
| 建物階数 | 地上2階地下1階 | 部屋階数 | |
| 部屋/区画番号 | --- | 総戸/区画数 | 1 |
| 建物構造 | 木造 | ||
| 敷地全体面積 | 延べ床面積 | 170.35m²(51.53坪) | |
| 間取内容 | |||
| 駐車場 | カーポート・ガレージ付き |
取引態様 | |
| 引渡/入居時期 | 相談 | 現況 | 居住中 |
| 地目 | 宅地 | 用途地域 | 第一種低層住居専 |
| 都市計画 | 市街化区域 | 地勢 | 平坦 |
| 土地面積 | 151.23m²(45.74坪) | 土地面積計測方式 | 公簿 |
| 建ぺい率 | 50% | 容積率 | 100% |
| 土地権利 | 所有権 | 接道状況 | 角地 |
| 接道方向1 | 南東 | 接道間口1 | |
| 接道種別1 | 公道 | 接道幅員1 | 3.9m |
| 接道方向2 | 南西 | 接道間口2 | |
| 接道種別2 | 私道 | 接道幅員2 | 3.7m |
| 周辺環境 | |||
| 設備・条件 |
|
||
| 学区 |
小学校
|
||
| 物件カテゴリー | |||
| 自社物 | 先物 | 状態 | 売出中 |
| 物件番号 | 4264 | ||
| 情報登録日 | 2025年7月28日 | 情報更新日 | 2025年10月23日 |
◆東南角地の為、陽当たり・開放感共に良好です♪
◆周辺は落ち着いた住環境が整っております♪
◆小学校が近く、お子様の通学もご安心です♪
◆公園が近く、お子様の遊び場に最適です♪
◆スーパーが近くにございますので、普段のお買い物に便利です♪
◆どちらの居室も広さが取れた間取りですので、お使いやすいかと思います♪
◆生活を助ける充実した仕様設備が整っております♪
◆室内状態良好です♪
物件掲載内容と現況に相違がある場合は現況を優先といたします。
物件周辺マップ
Loading...
ご注意
- 物件によっては正確な位置を示していない場合がございます。
- 現況が表示された内容と異なる場合は現況優先といたします。
- 表示されてる地図はGoogle社より提供されてるデータに基づいたものであり、表示内容についての責任は負いかねます。











